
HS stationaire heftafels
Toepassing: Stationaire heftafel voor zware lasten
WLL: 500 – 4.000 kg
Varia: Verwijderbare hijsogen voor eenvoudig transport.
Offerte
Vraag gerust vrijblijvend een offerte aan.
De universele stationaire heftafel voor het heffen van zware lasten kan plaatsbesparend toegepast worden door de heftafel in een put te plaatsen.
Kenmerken:
- Volgens EN 1570.
- 400 V, 50 Hz, 3 Ph, IP55.
- Robuuste bodem constructie.
- Profiel verstevigde tafel.
- Massief stalen scharen.
- Veilige contactlijst rondom.
- Inspectie steunen voor veilig onderhoud.
- Overlastbeveiliging.
- Slangbreuk veiligheidsventiel.
- Hardverchroomde cilinder en zuigerstang.
- Levensduur gesmeerde lagers.
- Compacte aandrijfunit.
Standaard levering:
Inclusief 24 V drukknopschakelaar met noodstop.
Verwijderbare hijsogen voor eenvoudig transport.
Norm:
EN12100-1/2,
EN1570-1
| Type | Veilige werklast (Kg) | Heftijd (sec) | hef/daal cicli/u | Bedrijfs-spanning (VAC) | Stuur-spanning (VAC) | Vermogen (kW) | Beschermings-klasse IP | Gewicht (Kg) |
| HS05-01 | 500 | 25 | 21 | 400 | 24 | 1,1 | IP55 | 193 |
| HS1-01 | 1000 | 20 | 21 | 400 | 24 | 0,75 | IP55 | 160 |
| HS1-04 | 1000 | 30 | 15 | 400 | 24 | 1,1 | IP55 | 210 |
| HS2-01 | 2000 | 20 | 21 | 400 | 24 | 1,5 | IP55 | 235 |
| HS2-06 | 2000 | 35 | 15 | 400 | 24 | 2,2 | IP55 | 315 |
| HS4-01 | 4000 | 40 | 13 | 400 | 24 | 2,2 | IP55 | 375 |
| HS4-06 | 4000 | 45 | 10 | 400 | 24 | 2,2 | IP55 | 505 |

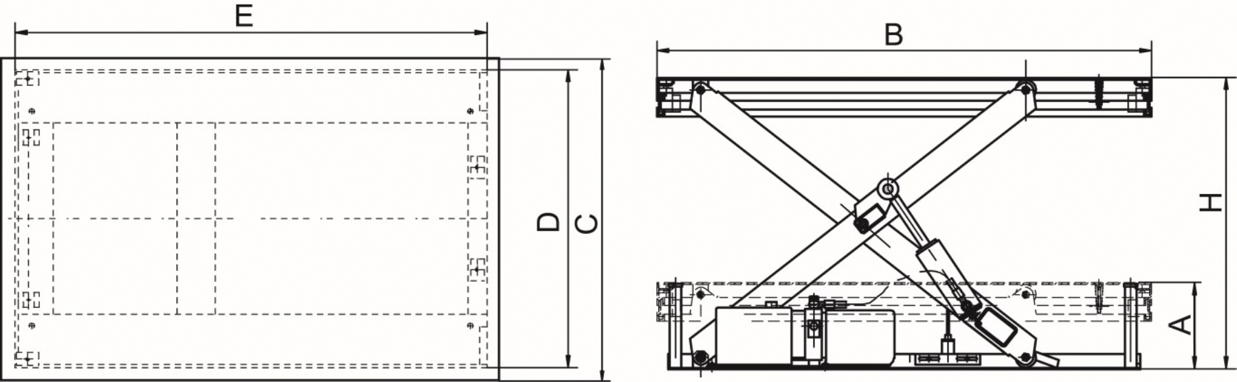
| Artikel nr. | Type | A (mm) | B (mm) | C (mm) | D (mm) | E (mm) | H (mm) |
| 5008101 | HS05-01 | 243 | 2000 | 800 | 680 | 1615 | 1043 |
| 5008102 | HS1-01 | 248 | 1300 | 820 | 640 | 1240 | 1033 |
| 5008103 | HS1-04 | 282 | 1700 | 1000 | 640 | 1580 | 1343 |
| 5008104 | HS2-01 | 273 | 1300 | 850 | 785 | 1220 | 1043 |
| 5008105 | HS2-06 | 293 | 2000 | 1000 | 785 | 1600 | 1343 |
| 5008106 | HS4-01 | 288 | 1700 | 1200 | 900 | 1600 | 1098 |
| 5008107 | HS4-06 | 348 | 2200 | 1200 | 900 | 2000 | 1448 |


